Appartamento di 249 mq in Vendita
€ 790.000
Moncalieri (TO) - Moncalieri
Strada Ferrero di Cambiano
Strada Ferrero di Cambiano
Classe energetica
A
IPe: 37.1 kwh/m²
Nel primo tratto di Strada Ferrero di Cambiano, a pochi passi da Corso Moncalieri/Strada Torino, all'interno di un complesso edificato nel 2014, luminoso Appartamento completamente ristrutturato con ampio terrazzo e giardino privato.
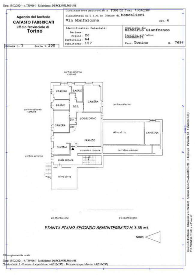
L'Appartamento è composto da ingresso, ampio soggiorno con sala da pranzo e cucina a vista, tre camere di cui una con cabina armadio, due bagni e ripostiglio; al piano seminterrato, collegato tramite ascensore, un'ampia autorimessa per tre auto e una cantina attualmente utilizzata come palestra.
Aggiornamenti catastali eventualmente in corso. Pertanto, tutti i dati sopra riportati non costituiscono elementi né presupposti contrattuali.
Informazioni immobile
Codice 11699
Contratto Vendita
Tipologia Appartamento
Regione Piemonte
Provincia Torino
Comune Moncalieri
Zona Moncalieri
Prezzo € 790.000
Totale mq 249 mq
Camere 3
Bagni 2
Locali 4
Stato conservazione Ristrutturato
Piano Piano terra
Piani totali 3
Riscaldamento Centralizzato
Ascensore Si
Stato attuale Libero al rogito
Spese condominio € 2.316 annuali
Disponibile Si
Giardino Privato
Cucina A vista
Box Rimessa
Posizione Centrale
Caratteristiche
Ubicazione Città
Virtual tour immobile
Ubicazione immobile

